3階建て狭小住宅における階段の活用法
- Kentaro HAYASHI

- 2022年10月8日
- 読了時間: 4分
都市部の3階建て住宅は、多くの場合、敷地の面積が相対的に小さく、いわゆる「狭小住宅」と言われるカテゴリーに分類されることが多くあります。
そうした狭小住宅では、住宅の中で階段が占める面積の割合が大きくなるため、その活用の仕方によって住宅の快適性が大きく変わります。
この記事では、木造3階建ての狭小住宅での階段の活かし方について、事例をベースに解説したいと思います。
一般的に3階建ての狭小住宅は、上下階が分断されがちで、下層階に自然光が届かず暗い環境になりがち、といったデメリットがあります。
また、狭小住宅の階段は、居室の面積を少しでも増加させる為に、極小の寸法で設計されることが多いのですが、狭い上に急勾配の危険な階段になりがちで、家庭内事故の原因となり上下層の分断をつくる一因にもなっています。
それらのデメリットを解消するには、安全に昇降できるプラン・寸法とした上で、下記のような役割を持たせることが重要となります。
・光を下層階まで通す光井戸の役割。
・換気を促し、通風を得る風道の役割。
・視覚的に上下をつなげる、吹抜けの役割。
こうした役割を実現するには、階段の形状、寸法に加えて、窓の大きさや配置、手すりのデザイン等の複合的な要素を組み合わせることが重要となります。
「阿佐ヶ谷ライト・エコハウス」では、階段にこれらの役割を持たせるよう、プランニング、寸法等が注意深くデザインされています。

建物のダイアグラム。
階段は、中庭の南側に隣接しており、ストレートな階段を上下に組み合わせています。
中庭と合わせて上下の「抜け」のある空間をつくっており、特に南からの自然光を下層階に取り込むことを意図した配置にしています。

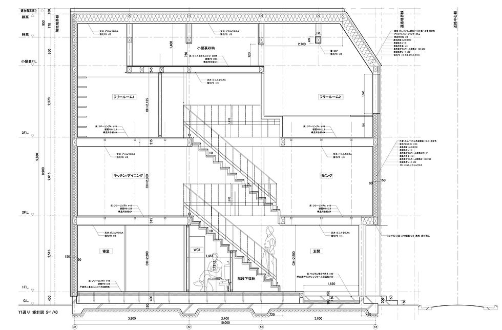
断面図。
階段が上下でジグザグ型に連続しています。
段と段の間は抜けており、光や風が通るようになっています。
また1階の階段下にはトイレを設け、3階の個室部分には収納スペースを設けています。
狭小住宅においては、「抜け」の空間をつくることも重要ですが、ちょっとした余剰の部分を活用することも重要となります。
階段の寸法は、踏段25cm、蹴上20cmとしています。住宅としてはやや余裕のある寸法となっています。

1階の玄関から階段を見たところ。
上階から自然光が降り注ぎ、暗くなりがちな1階を明るい雰囲気にしています。
階段の裏側はトイレと収納になっており、スペースを無駄なく活用しています。
この玄関エリアは、中庭からも自然光が入るので、あまり暗さを感じないような空間になっています。

2階のダイニングから見た階段と中庭。
階段廻りにある南の外壁面の窓から自然光が入ってきています。
複数の窓が開いているので、異なる質の自然光が得られ、窓から換気・通風が出来るようになっています。
階段上にある高所の窓から空気が抜けてゆくので、住居全体の換気が促進されます。

先の写真と反対側にある、2階リビング側から階段を見たところ。
こちらのアングルからも南側から自然光が入る様子が見てとれます。
ストレートかつシンプルな階段なので、昇降しやすくなっており、事故を未然に防止する効果を果たしています。
手摺は丸鋼を溶接して組み合わせています。
細い部材を組み合わせることで隙間を小さくして、強度と安全性がありつつ透け感のある手摺になっています。
以上、写真と図面で「阿佐ヶ谷ライト・エコハウス」の階段がつくる、光井戸、換気・通風、上下の視覚的接続、といった役割について解説しました。
こうした役割を持たせるためには、階段のプランニングをシンプルにし、ある程度余裕のある寸法とした上で、蹴上げ部分を透かしたり、全体に細めの部材で軽い印象のデザインにしたりすることや、窓の配置や大きさ、素材の選択や色調の選択が重要です。
しかし、デザインのバランスが悪いと、透けた部分が多くて危険な階段になってしまったり、逆に重くて光や風を通さない階段になってしまいます。
そうしたアンバランスを回避し、快適でデザイン上の機能性の高い階段とするには、それらのデザイン要素のバランスを考慮しつつ図面や模型、CGで検証しながら設計を進めることが重要になります。
KHアーキテクツでは、模型やCGを活用しながら複数のアイデアを検討しつつ階段をはじめとする住宅の各部分のディテールも丁寧に設計しています。
もしご興味ありましたら、お気軽にお問い合わせください。
・関連プロジェクト






コメント